
▲貴賓區(qū)VIP Room
移步貴賓室,一幅寫意水墨從遠處慢慢滲入,通過光影的渲染給空間注入力量與靈魂,用自然的空間語言闡述出水墨的靈動韻致。
▲洗手間Toilet
尊重自然,注重空間是設計師一貫遵循的核心設計理念。在本案中,室內設計師通過現代中式的設計手法,熟練地將水墨畫的美學、東方古韻的氣氛、靜觀自得的心境融合,平衡表達藝術與商業(yè)的交匯。讓你身臨其中,仿佛超越自然,超越時空,與天、地、人、物開啟一場對話,感受出儒雅東方的閩南水鄉(xiāng)之美。
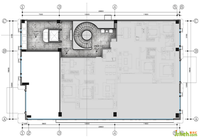
▲首層平面布置圖Floor Plan On The First Floor
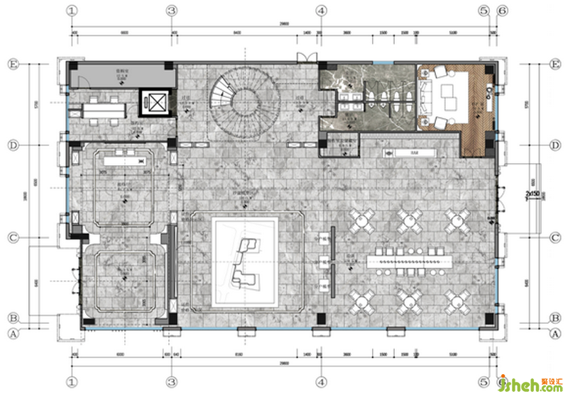
▲二層平面布置圖Floor Plan On The Second Floor