
“以壁為紙,以影為繪”,藝術品倒映出清晰的輪廓和剪影,于無水處生“水”。別墅裝修設計待繁星取代落日,皓月墜入夜空,夢境入光影沉淪,耳朵被自然喚醒,抬眼便是滿目星河以及靜謐的私享,和光而耀,思之即得。
"Using the wall as paper and the shadow as painting", the artwork reflects clear Outlines and silhouettes, generating "water" where there is no water. Wait for the stars to replace the setting sun, bright moon into the night sky, the dream into the destruction of light and shadow, the ear was awakened by nature, lifted eyes are everywhere stars and rivers and quiet private enjoyment, light and shine, think of it.
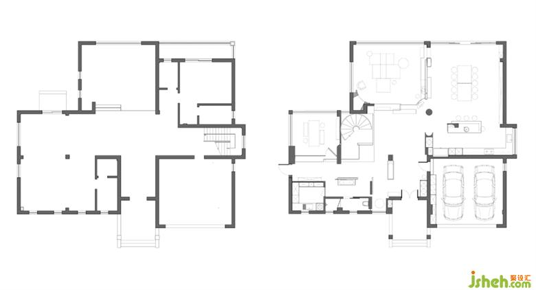
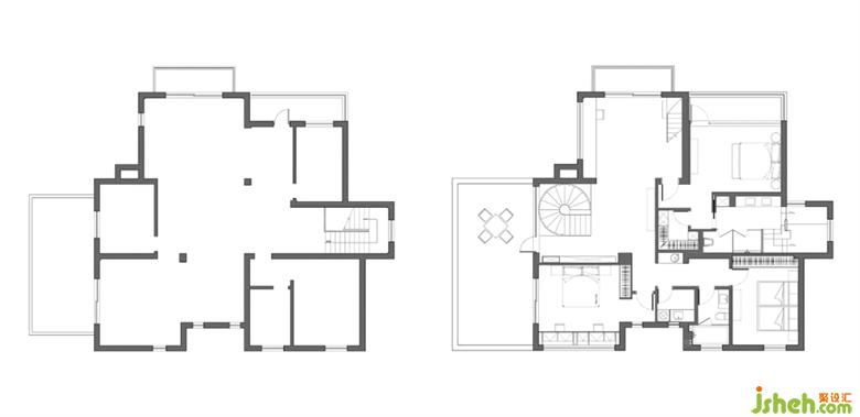
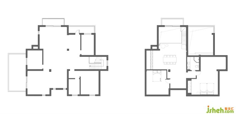
平面布置圖 Floor plan


更多別墅裝修設計請關注: