項目名稱:格 · 局
項目地址:江蘇省 蘇州市 吳中區(qū)
項目面積:84㎡
設計公司:一野設計事務所
開始時間:2019.10
完工時間:2020.05
攝影:晟蘇建筑攝影
追求本源釋放空間本質
在有限的結構空間內 創(chuàng)造無限的藝術可能
Pursue the origin and release the essence of space
Create unlimited artistic possibilities in a limited structural space
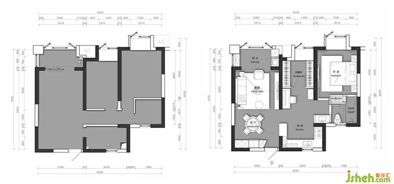
▲平面布局圖
本案的空間大小不僅受制于有限的使用面積,室內設計師而且整體被承重墻包裹,帶著業(yè)主的需求,我們構筑了開放空間的整體設計,在舍與得之間達到平衡點。
The size of the space in this case is not only restricted by the limited use area, but the whole is wrapped by the load-bearing wall, with the needs of the owner, we constructed the overall design of the open space to achieve a balance between willingness and gain.
空間整體采用黑白灰色調,營造出最干凈溫和的視覺觀感,有差異卻彼此融合的天然色系,能夠讓空間的一切變得沉浸并且放松。
The overall space uses black, white and gray tones to create the cleanest and gentler visual perception. The different but integrated natural colors can make everything in the space immersed and relaxed.

餐廳大理石臺面與鐵藝交相輝映,為空間注入了一絲硬朗。
The restaurant's marble countertops and iron art complement each other, adding a touch of toughness to the space.

客廳采用極簡風格的家具,簡潔的線條感與輕盈的空間設計,室內設計師突出現代風格的獨特美感,給人簡潔、舒適的居家享受。
恰到好處的平衡,富有人情味的表達,自然且充滿藝術氣質。
The living room adopts minimalist style furniture, simple lines and light space design, highlighting the unique beauty of modern style, giving people a simple and comfortable home enjoyment.
Just the right balance, humane expression, natural and full of artistic temperament.




衣帽間的雙開門設計,不僅增加了整個空間的氣場,讓留連于功能空間的儲物上,注入一種格調。
The double-door design of the cloakroom not only increases the aura of the entire space, but also injects a style into the storage in the functional space.