植物掩映下的自助柜臺
The self-service counter through the plants.
洞見蘇州慢,邂逅7分甜。當年輕人坐在空間中的傳統(tǒng)窗花前啜飲,蘇州餐廳設計在場景連接的時空中體會到園林之美,正是MOC對傳統(tǒng)文化在時代語境下的又一次探索。
Enjoying the slow Suzhou and tasting SWEET 7. When young people are sipping tea and sitting in front of the traditional window, they experience the beauty of the garden back in time and space, which is another exploration of traditional culture by MOC in the context of the times.

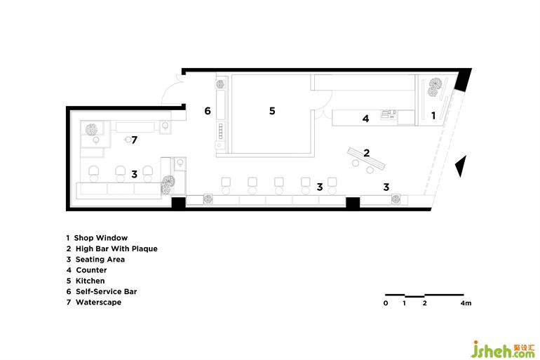
平面圖,F(xiàn)loorplan
更多蘇州餐廳設計請關注聚設匯裝修平臺:
掃描二維碼關注我們的微信