

手沖茶店設計在純粹建筑感受的空間中,一個玻璃茶室被置入其中,茶室是傳統(tǒng)茶道區(qū),精致華麗的黃金屏風透露與空間中極簡風格的碰撞,兩者差異巨大又和諧相處。
In the pure and architectural space, a glass tea room is in place for traditional tea ceremony. The fine and gorgeous golden screen clashes with the minimalist style of the space, which looks so different, but harmonious.



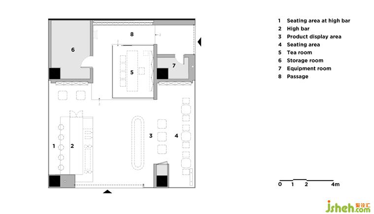
平面圖,Plan
入口一側極簡的吧臺則與空間呼應,吧臺區(qū)更適合年輕人的飲用習慣,手沖茶店設計當人們在吧臺前、天光下品茶,同時也可以看到中間玻璃茶室,感受到傳統(tǒng)茶道的魅力。
The minimalist bar on the entrance side echoes the space. The bar area is more in line with young people’s drinking habits. When people are sipping tea in front of the bar and under the sky light, they can also see the middle glass tea room and feel the charm of traditional tea ceremony.

掃描二維碼關注我們的微信