
根據需要可通過布簾劃分空間,極氪中心展廳設計通過家具的調整完成從休閑到論壇活動模式的轉變。
The space can be sectioned off by a cloth curtain as required, allowing for smooth transitions between casual and more formal settings through furniture adjustments.



金屬的楓樹裝置靈感來源于當?shù)厝嗣磕昵锛镜皆缆瓷降馁p楓活動
The metal maple tree installation is inspired by local tradition of visiting Mount Yuelu to admire the autumnal foliage.
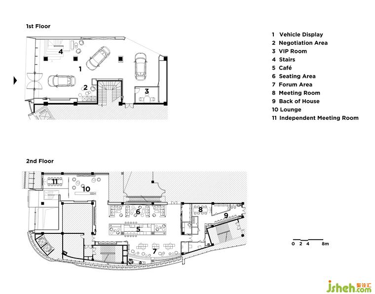
平面圖,Plan
更多極氪中心展廳設計請關注聚設匯裝修平臺: